凸輪轉子泵維修技術要點分析
摘要:凸輪轉子泵是化纖生產中物料(漿料)榆送系統的重要設備,介紹其技術性能、常見故障分析和維修技術要點,為設備通過管道連續…
銷售熱線
021-56082699 56081570
電子郵箱
likaimp@163.com
摘要:凸輪轉子泵是化纖生產中物料(漿料)榆送系統的重要設備,介紹其技術性能、常見故障分析和維修技術要點,為設備通過管道連續…
摘要:在化工領域,考慮到一次投賚成本和維修簡便,很多裝置內輸送物料場合業主習慣選用離心泵的轉子泵型比較多,而轉子泵如螺桿…
隨著生活水平和健康意識的不斷提高,人們對于食品安全的要求也越來越高。在食品及藥品生產過程中越來越多地采用了全自動化控制…
JYWQ型自動攪勻潛水排污泵在排送固體顆粒和長纖維垃圾以及減少污水坑內沉積等方面,具有良好的作用。 該泵水力性能成熟,性能指標良好。
本司產品全部采用計算機設計和優化處理,公司擁有雄厚的技術力量、豐富的生產經驗和完善的檢測手段,從而保證產品質量的穩定可靠。
1、利用泵自身出水壓力,攪勻污水池內沉淀污泥,真正達到徹底排出污水池沉淀物的目的。
2、大流道抗堵塞水力部件設計,大大提高污物通過能力,能有效通過泵口徑的5倍纖維物質和直徑為泵口徑約50%的固體顆粒。
3、設計合理,配套電機合理,效率高,節能效果良好。
4、機械密封采用雙道串聯密封,材質為硬質耐腐碳化鎢,耐用,耐磨,可使泵安全連續運行8000小時以上。
5、泵結構緊湊,體積小、移動方便,安裝簡便,無需建泵房,潛入水中即可工作,減少工程造價。
6、油室內設有油水探頭,對泵實施保護。
7、可配備全自動安全保護控制柜,對泵的漏水、漏電、過載及超溫等進行絕對保護,提高產品的安全可靠性。
8、浮球開關可根據所需的水位變化,自動控制泵的停啟,無需專人看管。
9、電機可采用水套式外循環冷卻系統,保證電泵在無水(干式)狀態下安全運行。
10、雙導軌自動耦合安裝系統,給泵的安裝、維修帶來極大的方便,人可不必為此進入污水坑。
11、安裝方式有固定式自動耦合安裝和移動式自由安裝二種,可滿足不同的使用場合。

| 型號 | 排出 口徑 (mm) | 額定 流量 (m3/h) | 額定 揚程 (mm) | 攪拌 直徑 (mm) | 轉速(r/min) | 效率(%) | 自動耦合器 |
|---|---|---|---|---|---|---|---|
| JYWQ50-12-15-1200-1.5 | 50 | 12 | 15 | 1200 | 2900 | 48 | CAK-50 |
| JYWQ50-20-7-1200-1.1 | 50 | 20 | 7 | 1200 | 2900 | 62 | CAK-50 |
| JYWQ50-10-10-1200-1.1 | 50 | 10 | 10 | 1200 | 2900 | 56 | CAK-50 |
| JYWQ50-15-15-1200-2.2 | 50 | 15 | 15 | 1200 | 2900 | 51 | CAK-50 |
| JYWQ50-25-10-1200-2.2 | 50 | 25 | 10 | 1200 | 2900 | 65 | CAK-50 |
| JYWQ50-15-20-1200-2.2 | 50 | 15 | 20 | 1200 | 2900 | 56 | CAK-50 |
| JYWQ50-20-15-1200-2.2 | 50 | 20 | 15 | 1200 | 2900 | 56 | CAK-50 |
| JYWQ50-42-9-1200-3 | 50 | 42 | 9 | 1200 | 2900 | 56 | CAK-50 |
| JYWQ50-17-25-1200-3 | 50 | 17 | 25 | 1200 | 2900 | 56 | CAK-50 |
| JYWQ50-25-22-1200-4 | 50 | 25 | 22 | 1200 | 2900 | 62 | CAK-50 |
| JYWQ50-40-15-1400-4 | 50 | 40 | 15 | 1400 | 2900 | 70 | CAK-50 |
| JYWQ50-25-32-1600-5.5 | 50 | 25 | 32 | 1600 | 2900 | 52 | CAK-50 |
| JYWQ50-40-30-1600-7.5 | 50 | 40 | 30 | 1600 | 2900 | 68 | CAK-50 |
| JYWQ65-25-15-1400-3 | 65 | 25 | 150 | 1400 | 2900 | 65 | CAK-65 |
| JYWQ65-37-13-1400-3 | 65 | 37 | 13 | 1400 | 2900 | 62 | CAK-65 |
| JYWQ65-25-28-1400-4 | 65 | 25 | 28 | 1400 | 2900 | 60 | CAK-65 |
| JYWQ80-40-7-1600-2.2 | 80 | 40 | 7 | 1600 | 2900 | 54 | CAK-80 |
| JYWQ80-29-8-1600-2.2 | 80 | 29 | 8 | 1600 | 2900 | 54 | CAK-80 |
| JYWQ80-43-13-1600-4 | 80 | 43 | 13 | 1600 | 2900 | 63 | CAK-80 |
| JYWQ80-50-10-1600-3 | 80 | 50 | 10 | 1600 | 1450 | 76 | CAK-80 |
| JYWQ80-40-15-1600-4 | 80 | 40 | 15 | 1600 | 2900 | 70 | CAK-80 |
| JYWQ80-60-13-1600-4 | 80 | 60 | 13 | 1600 | 2900 | 70 | CAK-80 |
| JYWQ80-35-25-1600-5.5 | 80 | 35 | 25 | 1600 | 2900 | 64 | CAK-80 |
| JYWQ80-50-25-1600-7.5 | 80 | 50 | 25 | 1600 | 2900 | 70 | CAK-80 |
| JYWQ80-50-30-1600-7.5 | 80 | 50 | 30 | 1600 | 2900 | 70 | CAK-80 |
| JYWQ100-80-9-2000-4 | 100 | 80 | 9 | 2000 | 1450 | 62 | CAK-100 |
| JYWQ100-110-10-2000-5.5 | 100 | 110 | 10 | 2000 | 1450 | 71 | CAK-100 |
| JYWQ100-70-15-2000-5.5 | 100 | 70 | 15 | 2000 | 1450 | 71 | CAK-100 |
| JYWQ100-100-15-2000-7.5 | 100 | 100 | 15 | 2000 | 1450 | 73 | CAK-100 |
| JYWQ100-80-20-2000-7.5 | 100 | 70 | 20 | 2000 | 2900 | 71 | CAK-100 |
| JYWQ100-50-35-2000-11 | 100 | 100 | 35 | 2000 | 2900 | 68 | CAK-100 |
| JYWQ100-70-22-2000-7.5 | 100 | 80 | 22 | 2000 | 2900 | 70 | CAK-100 |
| JYWQ100-100-22-2000-15 | 100 | 150 | 22 | 2000 | 1450 | 61 | CAK-100 |
| JYWQ100-80-30-2000-15 | 100 | 210 | 30 | 2000 | 1450 | 67 | CAK-100 |
| JYWQ150-150-10-2000-7.5 | 150 | 250 | 10 | 2000 | 1450 | 75 | CAK-150 |
| JYWQ150-210-7-2500-7.5 | 150 | 150 | 7 | 2500 | 1450 | 78 | CAK-150 |
| JYWQ150-250-6-2500-7.5 | 150 | 200 | 6 | 2500 | 1450 | 79 | CAK-150 |
| JYWQ150-150-15-2500-11 | 150 | 65 | 15 | 2500 | 1450 | 79 | CAK-150 |
| JYWQ150-200-10-2500-15 | 150 | 180 | 10 | 2500 | 1450 | 73 | CAK-150 |
| JYWQ150-65-40-3200-18.5 | 150 | 150 | 40 | 3200 | 1450 | 58 | CAK-150 |
| JYWQ150-180-22-2600-18.5 | 150 | 110 | 22 | 2600 | 1450 | 75 | CAK-150 |
| JYWQ150-150-26-2600-18.5 | 150 | 300 | 26 | 2600 | 1450 | 72 | CAK-150 |
| JYWQ150-110-30-2600-18.5 | 150 | 130 | 30 | 2600 | 1450 | 72 | CAK-150 |
| JYWQ150-300-15-2600-22 | 150 | 100 | 15 | 2600 | 1450 | 76 | CAK-150 |
| JYWQ150-130-30-2600-22 | 150 | 300 | 30 | 2600 | 1450 | 70 | CAK-150 |
| JYWQ150-100-40-3000-30 | 150 | 250 | 40 | 3000 | 1450 | 64 | CAK-150 |
| JYWQ200-300-7-3000-11 | 200 | 300 | 7 | 3000 | 1450 | 75 | CAK-200 |
| JYWQ200-250-11-3000-15 | 200 | 250 | 11 | 3000 | 1450 | 72 | CAK-200 |
| JYWQ200-300-10-3000-15 | 200 | 300 | 10 | 3000 | 1450 | 75 | CAK-200 |
| JYWQ200-250-15-3000-18.5 | 200 | 250 | 15 | 3000 | 1450 | 72 | CAK-200 |
| JYWQ200-400-10-3000-22 | 200 | 400 | 10 | 3000 | 1450 | 75 | CAK-200 |
| JYWQ200-200-20-3000-22 | 200 | 200 | 20 | 3000 | 1450 | 73 | CAK-200 |
| JYWQ200-250-22-3000-30 | 200 | 250 | 22 | 3000 | 1450 | 73 | CAK-200 |
| JYWQ250-600-7-3000-22 | 250 | 600 | 7 | 3000 | 1450 | 78 | CAK-250 |
| JYWQ250-600-9-3000-30 | 250 | 600 | 9 | 3000 | 1450 | 78 | CAK-250 |
適用于化工、石油、制藥、采礦、造紙、電廠及城市污水處理、市政工程、公共設施排污等輸送帶顆粒、沉淀物的污水污物。

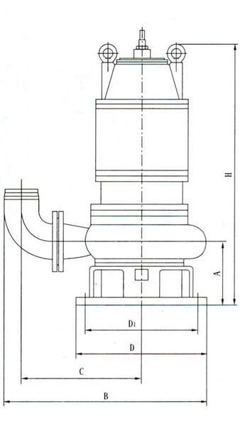
| 序號 | 型 號 | A | B | C | D1 | D | H |
| 1 | 50-12-15-1200-1.5 | 135 | 400 | 245 | 225 | 255 | 670 |
| 2 | 50-20-7-1200-1.1 | 132 | 343 | 225 | 150 | 180 | 610 |
| 3 | 50-10-10-1200-1.1 | 132 | 343 | 225 | 150 | 180 | 610 |
| 4 | 50-15-15-1200-2.2 | 135 | 400 | 245 | 225 | 255 | 670 |
| 5 | 50-25-10-1200-2.2 | 135 | 400 | 245 | 225 | 255 | 670 |
| 6 | 50-15-20-1200-2.2 | 135 | 400 | 245 | 225 | 255 | 670 |
| 7 | 50-20-15-1200-2.2 | 135 | 400 | 245 | 225 | 255 | 670 |
| 8 | 50-42-9-1200-3 | 143 | 420 | 265 | 225 | 255 | 750 |
| 9 | 50-17-25-1200-3 | 130 | 433 | 265 | 240 | 285 | 750 |
| 10 | 50-25-22-1200-4 | 135 | 400 | 245 | 225 | 255 | 735 |
| 11 | 50-40-15-1400-4 | 143 | 420 | 265 | 225 | 255 | 750 |
| 12 | 50-25-32-1600-5.5 | 180 | 480 | 295 | 270 | 320 | 820 |
| 13 | 50-40-30-1600-7.5 | 180 | 480 | 295 | 270 | 320 | 820 |
| 14 | 65-25-15-1400-3 | 143 | 435 | 270 | 225 | 255 | 750 |
| 15 | 65-37-13-1400-3 | 143 | 435 | 270 | 225 | 255 | 750 |
| 16 | 65-25-28-1400-4 | 180 | 515 | 317 | 270 | 320 | 800 |
| 17 | 80-40-7-1600-2.2 | 143 | 465 | 295 | 225 | 255 | 685 |
| 18 | 80-29-8-1600-2.2 | 143 | 465 | 295 | 225 | 255 | 685 |
| 19 | 80-43-13-1600-4 | 143 | 465 | 295 | 225 | 255 | 750 |
| 20 | 80-50-10-1600-3 | 180 | 570 | 325 | 280 | 320 | 790 |
| 21 | 80-40-15-1600-4 | 143 | 465 | 295 | 225 | 255 | 750 |
| 22 | 80-60-13-1600-4 | 143 | 465 | 295 | 225 | 255 | 750 |
| 23 | 80-35-25-1600-5.5 | 180 | 550 | 305 | 270 | 320 | 820 |
| 24 | 80-50-25-1600-7.5 | 180 | 550 | 305 | 270 | 320 | 820 |
| 25 | 80-50-30-1600-7.5 | 180 | 550 | 305 | 270 | 320 | 820 |
| 26 | 100-80-9-2000-4 | 180 | 600 | 386 | 280 | 320 | 790 |
| 27 | 100-110-10-2000-5.5 | 200 | 700 | 440 | 370 | 410 | 900 |
| 28 | 100-70-15-2000-5.5 | 200 | 690 | 430 | 370 | 410 | 900 |
| 29 | 100-100-15-2000-7.5 | 200 | 700 | 440 | 370 | 410 | 900 |
| 30 | 100-80-20-2000-7.5 | 180 | 585 | 370 | 270 | 320 | 900 |
| 31 | 100-50-35-2000-11 | 180 | 585 | 370 | 270 | 320 | 940 |
| 32 | 100-70-22-2000-7.5 | 180 | 585 | 370 | 270 | 320 | 900 |
| 33 | 100-100-22-2000-15 | 230 | 815 | 515 | 455 | 495 | 970 |
| 34 | 100-80-30-2000-15 | 230 | 815 | 515 | 455 | 495 | 970 |
| 35 | 150-150-10-2000-7.5 | 213 | 775 | 495 | 360 | 405 | 920 |
| 36 | 150-210-7-2500-7.5 | 242 | 830 | 540 | 365 | 410 | 950 |
| 37 | 150-250-6-2500-7.5 | 242 | 830 | 540 | 365 | 410 | 950 |
| 38 | 150-150-15-2500-11 | 220 | 770 | 495 | 345 | 395 | 990 |

1.通風節 2.預埋管 3.膨脹節 4.逆止閥 5.閘閥 6.彎管 7.導軌 8.出水管 9.支架 10.耦合底座 11.自動攪勻排污泵 12.浮球開關(水位開關)13.隔板 14.浮球固定架 15.小鏈 16.掛鉤 17.人梯 18.支撐架 19.電纜出線管 20.電機保護器

上一條: AS、AV型潛水排污泵
下一條: ZW型自吸式無堵塞排污泵